Quadrilocale in vendita

Rivoli, Via baldi
€ 195.000
4 locali 4 locali
85 Mq 85 Mq
1 bagno 1 bagno

Quadrilocale in vendita

Rivoli, Via baldi

Descrizione annuncio

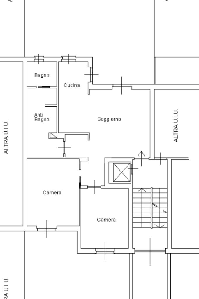
Nel cuore del comune di Rivoli, proponiamo un appartamento di 85 mq situato al piano terra, perfetto per chi cerca tranquillità senza rinunciare alla comodità dei servizi. L'immobile, costruito nel 1989 e ristrutturato nel 2016, offre un ambiente moderno e accogliente. La proprietà si compone di una spaziosa zona giorno ideale per momenti di relax e convivialità, una camera matrimoniale, una cameretta e un bagno. Il giardino, presente sia sul fronte che sul retro, rappresenta un'oasi di verde dove poter trascorrere piacevoli momenti all'aperto. La possibilità di un box auto aggiunge ulteriore praticità. L'appartamento è immerso nel verde, garantendo un'atmosfera serena, ma al contempo è ben collegato ai principali servizi, rendendolo una soluzione abitativa ideale per famiglie e coppie.

Mostra tutto

Nelle vicinanze

Trasporto pubblico Trasporto pubblico
Alpignano
Alpignano
3,0 Km
Baldi N. 3
Baldi N. 3
20 m
Nuova Tetti N. 41
Nuova Tetti N. 41
250 m
Ricariche auto elettriche Ricariche auto elettriche
Mercatò Rivoli
1,1 Km
Mercatò Rivoli | EnelX fast
1,2 Km
RIVOLI Via Pavia | ENELX FAST
2,1 Km
Tris Car Di Mina Giuseppe | EnelX
2,4 Km
Collegno Corso Francia | EnelX
2,7 Km
Scuole Scuole
I.I.S. "Giulio Natta"
330 m
Scuola Primaria Gozzano
340 m
Scuola Piero Gobetti - Rivoli
380 m
Liceo Scientifico paritario Lagrange
710 m
Collegio Scuola San Giuseppe
790 m
Farmacia Farmacia
Farmacia dei Bastioni
320 m
Farmacia
450 m
Comunale
700 m
Viscovo
730 m
Centrale
830 m
Ospedali Ospedali
Ospedale di Rivoli - Emergency
710 m
Ospedale di Rivoli
760 m
Supermercati Supermercati
Crai
490 m
E'
870 m
CRAI
1,1 Km
Coop
1,1 Km
Mercatò
1,2 Km
Negozi Negozi
I frutti del grano
550 m
Bread House Lab
600 m
Mattiazzo
600 m
Re Bianco
660 m
Negozi
720 m
Bar Bar
Ary Caffè
880 m
Bar
1,1 Km
Il Sole
1,1 Km
La Corona
1,1 Km
Macchiato D'inchiostro
1,2 Km
Ristoranti Ristoranti
Il Bisogno
630 m
.Italy
690 m
Kaizen
760 m
La Grande Pizza
940 m
Opificio
950 m
Mostra tutto

Caratteristiche

Rif.:
61183906
Piano:
Terra con giardino di 4 con ascensore
Totale piani:
4
Box:
1
Camere da letto:
2
Arredamento:
Assente
Mostra tutto
Prezzo Prezzo
€ 195.000
Prezzo box Prezzo box
€ 20.000
Rata mutuo Rata mutuo
€ 911 / mese
Spese annue Spese annue
€ 1.000
Proponi il tuo prezzoProponi il tuo prezzo

Classe Energetica

D
D
D
D
D
D
D
D
D
EP globale non rinnovabile:
10.00 kW h/m² anno
EP globale rinnovabile:
10.00 kW h/m² anno
EP invernale del fabbricato:
EP estiva del fabbricato:
Anno di costruzione:
1989
Riscaldamento:
Autonomo
Tipo impianto:
A radiatori
Tipo alimentazione:
Metano

Ti interessa visionare l'immobile?

Fissa un appuntamento  Fissa un appuntamento

Richiedi informazioni

Clicca su Leggi per aprire l'informativa
* Questi campi sono obbligatori

Calcola il tuo mutuo

Semplice e senza impegno
Anticipo

( % )
Mutuo

( % )

pochi semplici passi

inserisci i tuoi dati
Questionario completato
Grazie per aver richiesto un appuntamento senza impegno con un nostro Consulente del Credito e Assicurativo.

Hai inserito correttamente tutti i dati necessari e a breve riceverai una e-mail con un link da convalidare per inviare i tuoi dati.
Affiliato
Studio Piol Srl
P.zza Principe Eugenio, 13/B 10098 Rivoli (TO)

Il nostro staff


  • Andrea Crisafi
    Affiliato

  • Alessandro Corro
    Collaboratore

  • Tiziana Chialva
    Coordinatrice
P.zza Principe Eugenio, 13/B 10098 Rivoli (TO)
Zona: Rivoli - Via Piol - Piazza Martiri
Mostra su mappa
Orari: LU-VE dalle 9.00 alle 12.30 e dalle 15.00 alle 20.00 SAB dalle 09.00 alle 12.30 e dalle 15.00 alle 19.00
Affiliato
Studio Piol Srl
P.zza Principe Eugenio, 13/B 10098 Rivoli (TO)

2026 Tecnocasa Franchising S.p.A. - P. IVA 08365160152 - Via Monte Bianco 60/A 20089 Rozzano (MI). Ogni agenzia ha un proprio titolare ed è autonoma. Privacy policy | Policy utilizzo | Cookie policy