Villa singola in vendita

Rivoli, Via Primo Maggio
€ 590.000
Prezzo aggiornato
10 locali 10 locali
365 Mq 365 Mq
5 bagni 5 bagni

Villa singola in vendita

Rivoli, Via Primo Maggio

Descrizione annuncio

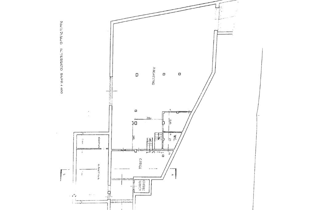
Rivoli, Via Primo Maggio, Villa libera sui quattro lati su lotto complessivo di circa 900 mq. Disposta su due livelli oltre ad un piano interrato. Al piano terreno, soggiorno con camino a legna, cucina abitabile con uscita diretta sul portico coperto, due camere da letto, ripostiglio e doppi servizi. Al primo piano, zona notte con 3 camere da letto, cabina armadio e due bagni completi. Ampio terrazzo coperto comunicante con la camera da letto padronale. Al piano interrato, ampio magazzino alto 3,5 mt, utilizzabile anche come box auto, oltre a lavanderia e cantina. Accesso da una rampa indipendente. Complessivamente la superficie dell'abitazione è di 280 mq circa, mentre la zona interrata è di circa 330 mq. Le immagini con il simbolo di Gemini in basso a destra sono state modificate con l'aiuto dell Ai, per facilitare l'immaginazione di nuove prospettive per la villa.

Mostra tutto

Nelle vicinanze

Trasporto pubblico Trasporto pubblico
Alpignano
Alpignano
2,6 Km
Itis Natta Capolinea
Itis Natta Capolinea
30 m
Trasporto pubblico
110 m
Ricariche auto elettriche Ricariche auto elettriche
Mercatò Rivoli
870 m
Mercatò Rivoli | EnelX fast
930 m
RIVOLI Via Pavia | ENELX FAST
1,7 Km
Tris Car Di Mina Giuseppe | EnelX
2,3 Km
Collegno Corso Francia | EnelX
2,3 Km
Scuole Scuole
I.I.S. "Giulio Natta"
200 m
Scuola Primaria Cavour
320 m
Collegio Scuola San Giuseppe
600 m
Scuola Primaria "Walt Disney"
660 m
Scuola Primaria Gozzano
670 m
Farmacia Farmacia
Farmacia dei Bastioni
570 m
Farmacia
580 m
Farmacia San Paolo
710 m
Centrale
870 m
Comunale
950 m
Ospedali Ospedali
Ospedale di Rivoli - Emergency
1,2 Km
Ospedale di Rivoli
1,3 Km
Supermercati Supermercati
Crai
550 m
CRAI
680 m
E'
840 m
Coop
930 m
Mercatò
950 m
Negozi Negozi
I frutti del grano
560 m
Mattiazzo
760 m
Re Bianco
810 m
Ël forn ëd Rivulè
880 m
Intimo e Altro
880 m
Bar Bar
Bar
830 m
Ary Caffè
990 m
Pinguino
1,2 Km
Macchiato D'inchiostro
1,3 Km
Il Sole
1,3 Km
Ristoranti Ristoranti
Il Bisogno
680 m
.Italy
800 m
Kaizen
880 m
La Grande Pizza
920 m
Gennaro Esposito
970 m
Mostra tutto

Caratteristiche

Rif.:
61060126
Piano:
3 di 2 con ascensore (Piano terra)
Box:
2
Posti auto:
15
Balconi:
2
Terrazzi:
1
Mostra tutto
Prezzo Prezzo
€ 590.000
Rata mutuo Rata mutuo
€ 2.789 / mese
Spese annue Spese annue
€ 1
Proponi il tuo prezzoProponi il tuo prezzo

Classe Energetica

E
E
E
E
E
E
E
E
E
EP globale non rinnovabile:
2.08 kW h/m² anno
EP globale rinnovabile:
2.08 kW h/m² anno
Anno di costruzione:
1975
Riscaldamento:
Autonomo
Tipo impianto:
A radiatori
Tipo alimentazione:
Metano

Prezzo ridotto di €1 (10%%)

Ti interessa visionare l'immobile?

Fissa un appuntamento  Fissa un appuntamento

Richiedi informazioni

Clicca su Leggi per aprire l'informativa
* Questi campi sono obbligatori

Calcola il tuo mutuo

Semplice e senza impegno
Anticipo

( % )
Mutuo

( % )

pochi semplici passi

inserisci i tuoi dati
Questionario completato
Grazie per aver richiesto un appuntamento senza impegno con un nostro Consulente del Credito e Assicurativo.

Hai inserito correttamente tutti i dati necessari e a breve riceverai una e-mail con un link da convalidare per inviare i tuoi dati.
Affiliato
Studio Piol Srl
P.zza Principe Eugenio, 13/B 10098 Rivoli (TO)

Il nostro staff


  • Andrea Crisafi
    Affiliato

  • Alessandro Corro
    Collaboratore

  • Tiziana Chialva
    Coordinatrice
P.zza Principe Eugenio, 13/B 10098 Rivoli (TO)
Zona: Rivoli - Via Piol - Piazza Martiri
Mostra su mappa
Orari: LU-VE dalle 9.00 alle 12.30 e dalle 15.00 alle 20.00 SAB dalle 09.00 alle 12.30 e dalle 15.00 alle 19.00
Affiliato
Studio Piol Srl
P.zza Principe Eugenio, 13/B 10098 Rivoli (TO)

2026 Tecnocasa Franchising S.p.A. - P. IVA 08365160152 - Via Monte Bianco 60/A 20089 Rozzano (MI). Ogni agenzia ha un proprio titolare ed è autonoma. Privacy policy | Policy utilizzo | Cookie policy